





Cottage in Sutton
A mountain ski cottage for a family with 2 children. The project inserts itself in the landscape as a black elongated shape running down the slope.
The axis, marked by the shape of the house, points towards the south as well as Mount Sutton, a view which we wanted to prioritize.
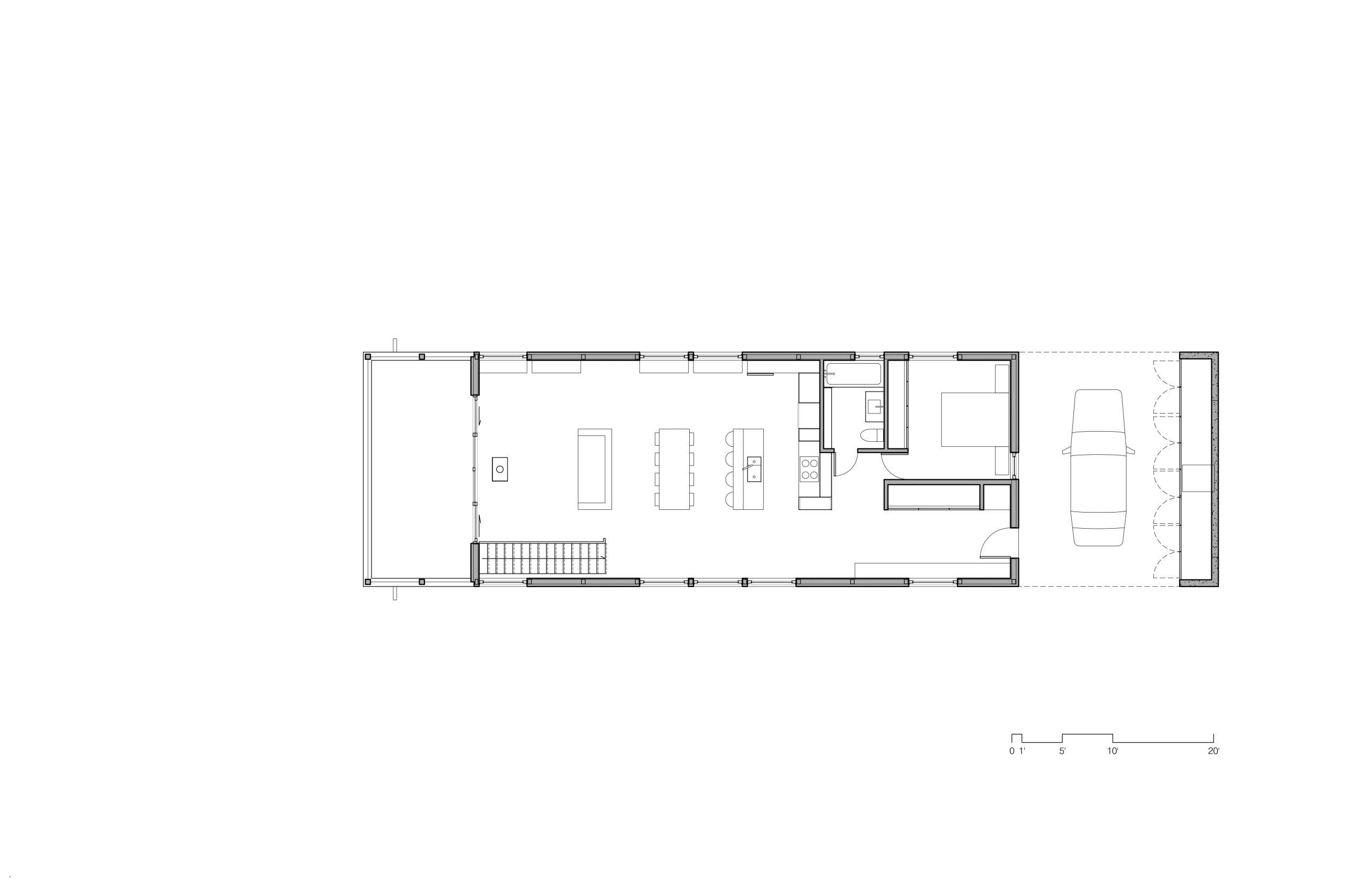
The roof slope is inverted to the site’s topography. Hence, the house has 2 levels at its south end, with wide openings, whereas its north end has a low facade and is protected by a carport. The shelter’s concrete wall also protects the house from runoff water coming from the mountain, which are heavy during the melting season.
The house is completely covered by cedar planks, stained black on its outdoor walls, and white on the inside faces. The plank siding is displayed horizontally, with a vertical plank corresponding to the position of each of the structural columns inserted in the side walls. Inside, one can see the roof beams supported by these columns which give rhythm to the space.
From the road, at the north, the green roof is the cottage’s most visible element. So when it is seen from this side, during summer or winter, the house melts itself into the landscape.
Year : 2013
Team : Paul Bernier, Anick Thibeault
Structural Engineer : Alain Mousseau (Calculatec)
Contractor : Constructions Boivin
Photos : ©Claude Dagenais


















